Albany Road, Salisbury

A character end of terrace house in a prime city centre location. Four bedrooms and a large open plan kitchen/dining room.
£530,000
  • Key Features
  • Description
  • EPC
  • Floor Plan
  • Brochure
  • Street View
  • Map
Key Features
Rooms 4
Bathrooms 1
Living Rooms 2
Floor Area 1316 sq ft

Freehold

  • Character end of terrace house
  • Four bedrooms
  • Sitting room
  • Dining room
  • Kitchen/dining room
  • FF bathroom
  • Period features
  • Gas CH
  • Rear garden
  • City centre location
Description

The property is a four bedroom character end of terrace house situated in a prime residential city centre location. It is well presented throughhout and has a range of period features with high ceilings, sash windows, ornate coving, a moulded arch in the hallway, cast iron fireplaces and dado and picture rails.

The well proportioned accommodation comprises an entrance hallway with stairs leading to the first floor. The sitting room has an attractive bay window, a ceiling rose and a feature fireplace. The dining room has an original built in dresser with glass fronted display shelving, a further feature fireplace and French doors leading to the rear garden. The layout has been altered to provide a large, light and airy kitchen/dining room which has an excellent range of units, a built in gas oven, space for both a washing machine and dishwasher and a fridge/freezer. The dining area has attractive Tri-fold doors leading out on to the rear garden and this room makes for a great entertaining space.

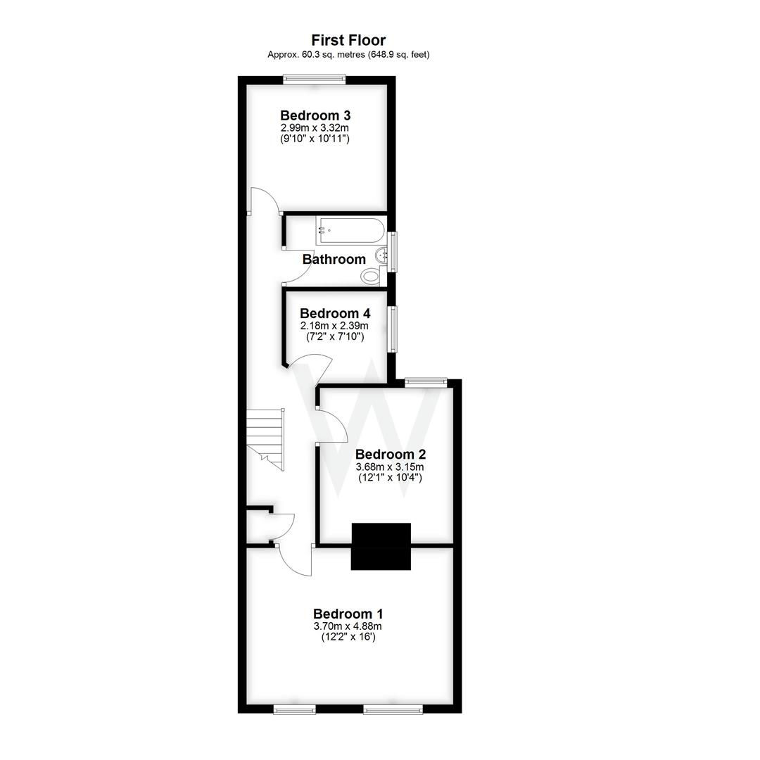
On the first floor, the main bedroom has a cast iron fireplace and two windows which provide southerly views along the length of Albany Road. There are two further double bedrooms, a single bedroom and a family bathroom which has a white three piece suite.

The house is set back from the road with a small garden area to the front and to the rear is a low maintenance paved and gravelled garden with a rear access gate.

Albany Road lies inside the ring road within easy walking distance of the city centre and amenities including the railway station and the Waitrose store. It also lies within the catchment area for the two Grammar schools, Bishop Wordsworth (boys) and South Wilts (girls).

EPC
EPC
Floor Plan
Floor Plan Floor Plan Floor Plan
Street View
Map

Thinking of selling?

Find out how much your home is worth with
our free valuation service

Book a Free Valuation

Use this calculator to help you work out
how much you borrow.

Mortgage Calculator

I’ve been immensely impressed by Whites Salisbury over the last several years. I only rent out one property but Carly and Diane have provided first rate support. They charge a fair amount for the management of the flat; they get in good value companies to undertake repairs and always keep me informed of any issues. Highly recommended.

Gary a.

Whites have been exceptional in my sale and purchase. From the valuation to viewing, I felt safe in Matthew’s hands. The team as a whole, in particular, Sally were welcoming and made the stressful procedure so much better. I would 100% recommend Whites, a small team with a big heart.

Caroline W.

Tony Williams was an important factor in making the house sale go through as smoothly as possible. He was there to offer advice and support and we are most grateful for his kind and professional service. Thank-you Tony and the White’s team for an awesome job!!

Kenneth K.

We were on the fence about moving when we approached several agents and Tony Williams of Whites’ gentle approach helped us to make the decision that was right for us. We sold during a tumultuous market and Tony did an excellent job of managing our expectations as well as our buyers.

 

Chris W.

We had a fantastic experience renting with Whites, and Carly, in particular, made the entire process seamless. She was not only friendly but also consistently available, addressing all our queries. Carly went the extra mile to accommodate our needs, giving us confidence about renting our new home. We highly appreciate her dedication and professionalism.

David L.