Thistlebarrow Road, Salisbury

A rare opportunity to purchase an extended detached house together with driveway parking, 9m covered area, 6m garage and studio to rear, situated in a highly sought after location to the north of the city close to local co-op store and Victoria Park. Also within walking distance of the city centre, railway station and the grammar and other schools. There is gas central heating and double glazing. The property is now in need of updating and possible alteration and is offered with vacant possession.
£425,000
  • Key Features
  • Description
  • EPC
  • Floor Plan
  • Brochure
  • Street View
  • Map
Key Features
Rooms 3
Bathrooms 1
Living Rooms 2
Floor Area 1799 sq ft

Freehold

  • Great Location
  • Extended Downstairs
  • 9m covered parking plus 6m Garage
  • Driveway
  • 3 Bedrooms
  • Large Sitting Room
  • 7m Kitchen
  • Vacant Possession
  • In need of Updating
Description

A rare opportunity to purchase an extended detached house together with driveway parking, 9m covered area, 6m garage and studio to rear, situated in a highly sought after location to the north of the city close to local co-op store and Victoria Park. Also within walking distance of the city centre, railway station and the grammar and other schools. There is gas central heating and double glazing. The property is now in need of updating and possible alteration and is offered with vacant possession.

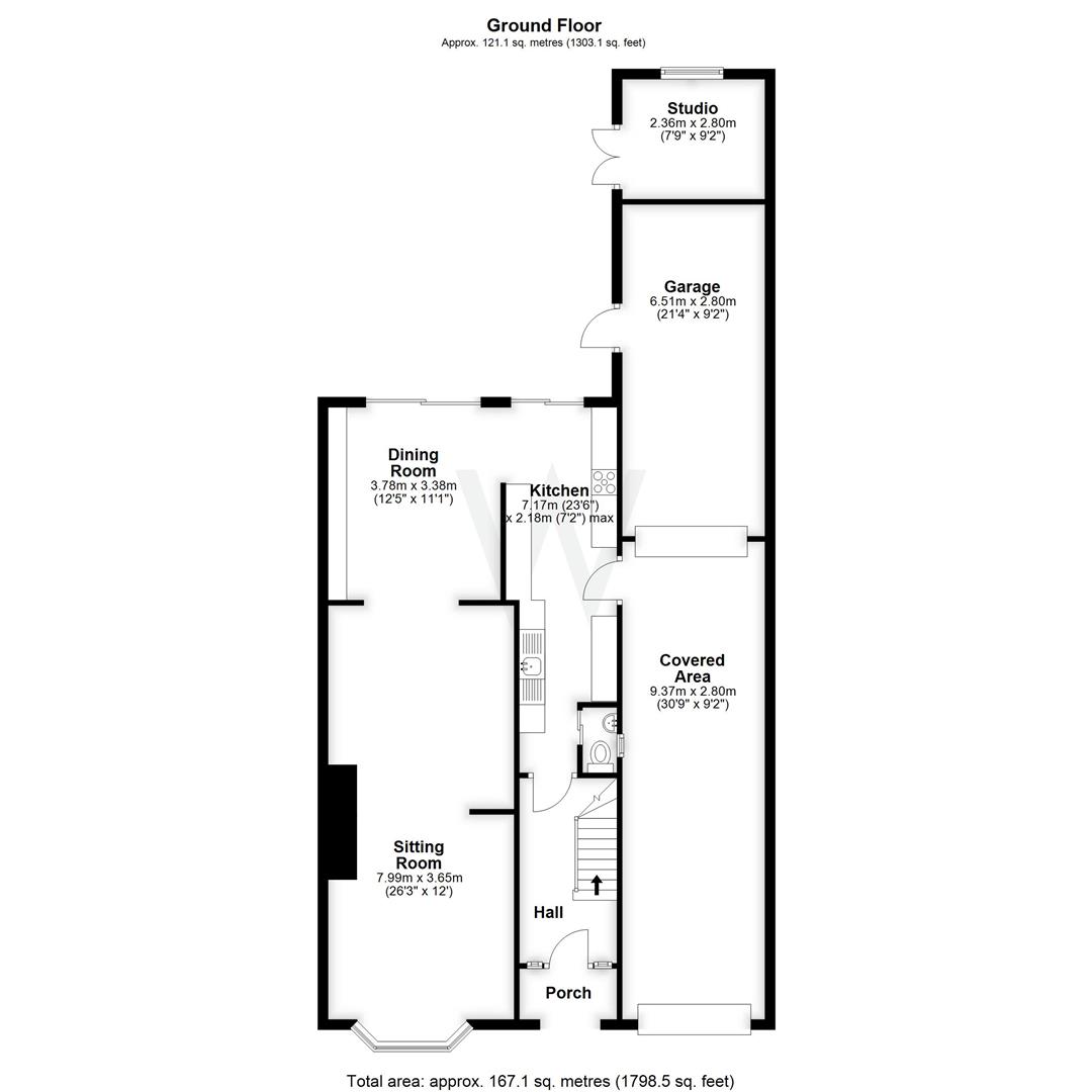
To the front of the property is a driveway offering parking for several vehicles, behind and with walling to sides, shrubs, climbing plants and steps to front door. An entrance porch gives protection whilst entering through the front door into the hallway which has stairs to first floor with cupboards below. A door leads into the double length sitting room with bay window to front, stone fireplace and an opening through to the dining room. This has sliding doors to the garden and a range of shelves and cupboards. This is open to the kitchen which has a terrific range of work tops, cupboards and drawers. Built in oven, hob and stainless steel sink. There is also a cloakroom with wc and hand basin. On the first floor is a bathroom with cupboard housing recently installed Worcester combination gas fired boiler for central heating and hot water, panel bath with electric shower over and hand basin. There is a separate wc. To finish the inside are three bedrooms.

Outside is a covered parking/storage area with electric up and over door. A further electric up and over door leads to a garage with window to rear. Both these have light and power together with a pedestrian gate into the garden. To the rear of the garage is a useful studio/home office. The garden has a paved patio leading to lawn with flower beds, shrubs and garden shed.

EPC
EPC
Floor Plan
Floor Plan Floor Plan Floor Plan
Street View
Map

Thinking of selling?

Find out how much your home is worth with
our free valuation service

Book a Free Valuation

Use this calculator to help you work out
how much you borrow.

Mortgage Calculator

I’ve been immensely impressed by Whites Salisbury over the last several years. I only rent out one property but Carly and Diane have provided first rate support. They charge a fair amount for the management of the flat; they get in good value companies to undertake repairs and always keep me informed of any issues. Highly recommended.

Gary a.

Whites have been exceptional in my sale and purchase. From the valuation to viewing, I felt safe in Matthew’s hands. The team as a whole, in particular, Sally were welcoming and made the stressful procedure so much better. I would 100% recommend Whites, a small team with a big heart.

Caroline W.

Tony Williams was an important factor in making the house sale go through as smoothly as possible. He was there to offer advice and support and we are most grateful for his kind and professional service. Thank-you Tony and the White’s team for an awesome job!!

Kenneth K.

We were on the fence about moving when we approached several agents and Tony Williams of Whites’ gentle approach helped us to make the decision that was right for us. We sold during a tumultuous market and Tony did an excellent job of managing our expectations as well as our buyers.

 

Chris W.

We had a fantastic experience renting with Whites, and Carly, in particular, made the entire process seamless. She was not only friendly but also consistently available, addressing all our queries. Carly went the extra mile to accommodate our needs, giving us confidence about renting our new home. We highly appreciate her dedication and professionalism.

David L.