Chine Road, Upper Woodford

A brilliant opportunity to purchase a good-sized period cottage which is now in need of finishing off and perhaps alteration to create a stunning family home.
** BUYERS LEGAL FEE'S PAID SUBJECT TO T&C'S **
£475,000
  • Key Features
  • Description
  • EPC
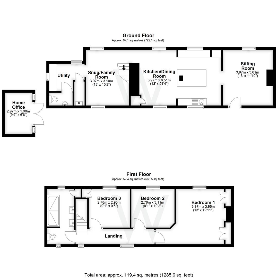
  • Floor Plan
  • Brochure
  • Street View
  • Map
Key Features
Rooms 3
Bathrooms 2
Living Rooms 2
Floor Area 1884 sq ft

Freehold

  • Period Cottage
  • Sought after village
  • Beautiful countryside
  • Three bedrooms
  • Parking for several vehicles
  • Full of character
  • Newly fitted kitchen
  • LPG heating
  • Vacant possession
  • Buyers legal fee's paid subject to T&C's
Description

Sava Cottage is situated in the heart of the village of Upper Woodford, close to The Bridge public inn, primary school in Middle Woodford and stunning countryside all around. The property is believed to have originally been two cottages, constructed with cob walls under a slate roof, and now benefits from LPG fired central heating, a new consumer unit, double glazed windows, exposed timbers throughout, newly-installed kitchen, newly-installed bathroom, outside studio and garden. There are also parking spaces for two vehicles to the front. Vacant possession is offered.

The cottage is approached over a brick pavior parking space with stone gabions and timber surrounds, gravel pathways leading through to the garden and front door. The sitting room has a slate floor with fireplace with woodburning stove. An archway gives access to the kitchen/dining room which is double length with wooden worktops, extensive base and wall mounted cupboards, single drainer ceramic sink, built-in oven, built-in induction hob, built-in dishwasher, slate floor, downlighters and woodburning stove in inglenook fireplace with exposed brickwork, flint wall and bressumer beam with cupboard to side. Continue through to the family room which has a tiled floor and stairs to first floor. To the rear of the cottage is a utility area with space and plumbing for washing machine and tumble dryer, cupboard housing Ideal LPG fired boiler for central heating and hot water. A cloakroom completes the downstairs accommodation with low level WC and wash hand basin. On the first floor are three good sized bedrooms with oak strip flooring, the main bedroom has two double built-in wardrobes and exposed brick fireplace. The third bedroom has a built in double wardrobe and all the bedrooms have a considerable number of exposed timbers. The bathroom is a good size with concealed cistern WC, twin wash hand basins with drawers below, built-in storage cupboard and walk-in cubicle with rainfall shower and retaining glass screen.

The garden is private and on several levels, with retaining walls and timber sides. It is primarily laid to lawn with flowerbed areas, gravelled sitting area and a timber-clad studio, external light, power and tap. There are 2 further access gates onto Chine Road.

EPC
EPC
Floor Plan
Floor Plan
Street View
Map

Thinking of selling?

Find out how much your home is worth with
our free valuation service

Book a Free Valuation

Use this calculator to help you work out
how much you borrow.

Mortgage Calculator

I’ve been immensely impressed by Whites Salisbury over the last several years. I only rent out one property but Carly and Diane have provided first rate support. They charge a fair amount for the management of the flat; they get in good value companies to undertake repairs and always keep me informed of any issues. Highly recommended.

Gary a.

Whites have been exceptional in my sale and purchase. From the valuation to viewing, I felt safe in Matthew’s hands. The team as a whole, in particular, Sally were welcoming and made the stressful procedure so much better. I would 100% recommend Whites, a small team with a big heart.

Caroline W.

Tony Williams was an important factor in making the house sale go through as smoothly as possible. He was there to offer advice and support and we are most grateful for his kind and professional service. Thank-you Tony and the White’s team for an awesome job!!

Kenneth K.

We were on the fence about moving when we approached several agents and Tony Williams of Whites’ gentle approach helped us to make the decision that was right for us. We sold during a tumultuous market and Tony did an excellent job of managing our expectations as well as our buyers.

 

Chris W.

We had a fantastic experience renting with Whites, and Carly, in particular, made the entire process seamless. She was not only friendly but also consistently available, addressing all our queries. Carly went the extra mile to accommodate our needs, giving us confidence about renting our new home. We highly appreciate her dedication and professionalism.

David L.