College Street, Salisbury

A three-bedroom terraced house in need of some updating. Arranged over three floors, with PVCu double glazing, gas central heating and a rear garden.
£290,000
  • Key Features
  • Description
  • EPC
  • Floor Plan
  • Brochure
  • Street View
  • Map
Key Features
Rooms 3
Bathrooms 3
Living Rooms 3
Floor Area 1251 sq ft

Freehold

  • Terraced house
  • Three bedrooms
  • Two reception rooms
  • Kitchen & utility
  • Conservatory
  • GF shower room
  • FF bathroom
  • En suite to master bedroom
  • Popular location
  • Some updating required
Description

Description

The property is a three bedroom terrace house with spacious accommodation arranged over three floors. The house is in need of some modernisation and could be altered and extended to provide further accommodation. On the ground floor is an entrance hallway, a sitting room, a dining room and a kitchen. There is a conservatory extension which leads through to a shower room and a utility room. On the first floor are two bedrooms and a bathroom with a white four piece suite and on the second floor is a double bedroom with built in storage and an en-suite shower room. The property benefits from PVCu double glazing, gas central heating and a garden to the rear. College Street is situated in a very popular area of the city, within a short level walk of the city centre with a pleasant recreation ground nearby. The city has an excellent range of amenities including a mainline railway station serving London Waterloo. The property is offered to the market with no onward chain.

Property Specifics

The accommodation is arranged as follows,:

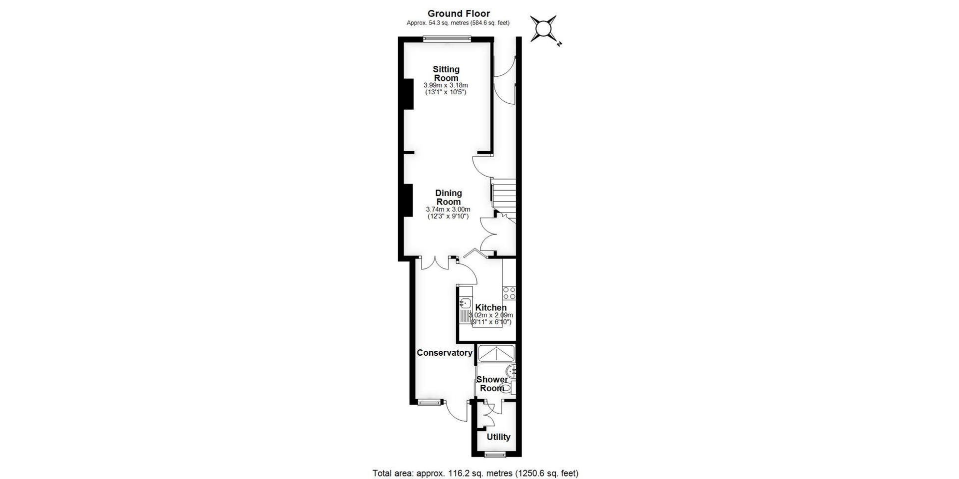
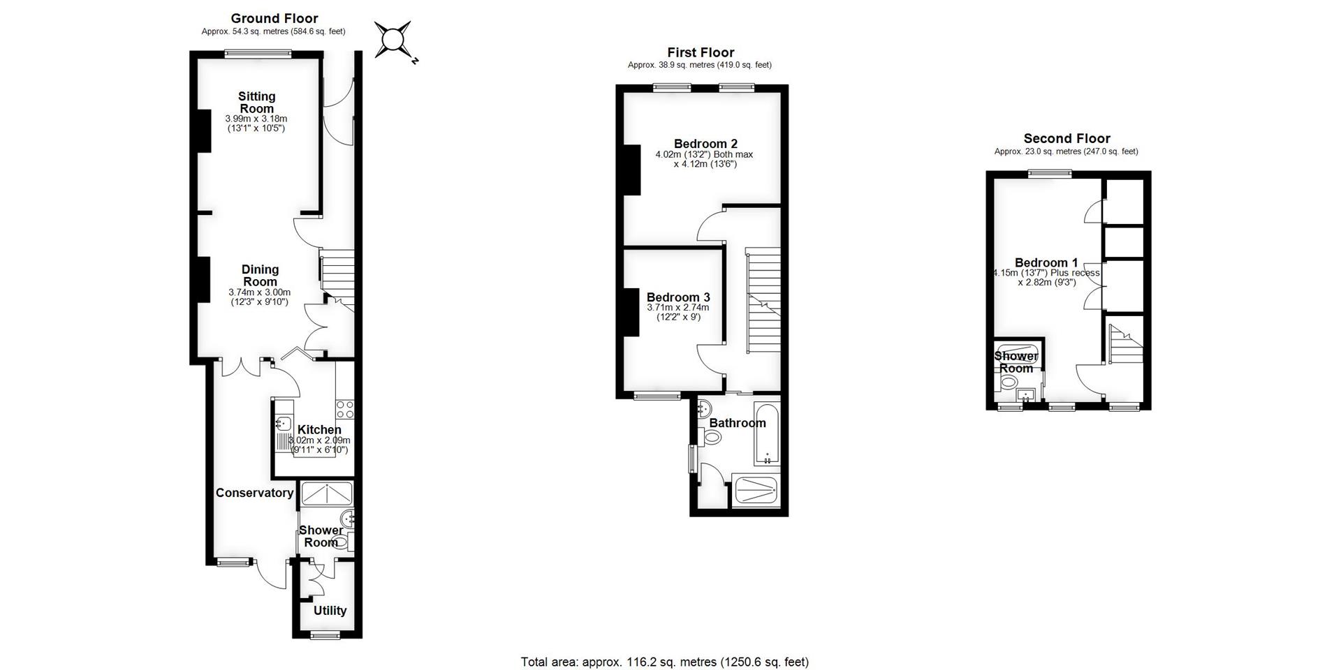
Entrance Porch

Light and tiled step, glazed front door, inset doormat, door to;

Entrance Hall

Stairs, moulded archway, door to dining room.

Sitting Room

Window to front, radiator, gas fire.

Dining Room

Glazed French doors to rear conservatory, under stair storage cupboards, space for table and chairs, two fitted dresser style units.

Kitchen

Fitted with base and wall units with work surfaces over and tiled splashbacks, sink and drainer under window to side, electric cooker, space for fridge, space/plumbing for dishwasher, tiled floor, door to;

Conservatory

Storage cupboards, tiled floor, pitched perspex roof, French doors to rear, space for freezer, sliding door to

Shower Room

Walk in shower area, wash hand basin, low level WC, door to;

Utility room

Space/plumbing for washing machine, storage cupboards, perspex roof, window to rear.

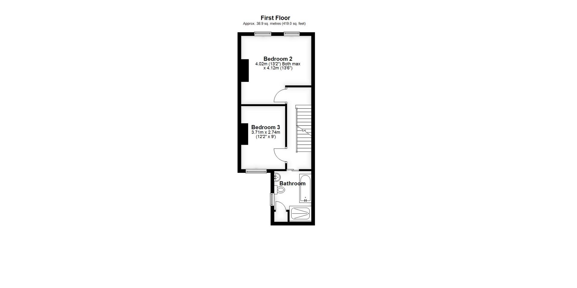
First Floor – Landing

Stairs to second floor, doors to bedrooms and bathroom.

Bedroom Two

Two windows to front, radiator, open wardrobe space with hanging rails.

Bedroom Three

Window to rear, radiator, fitted shelving and cupboards, radiator.

Bathroom

Fitted with a suite comprising panelled bath, shower cubicle, low level WC, wash hand basin with cupboards under, cupboard housing gas boiler, radiator, inset spotlights, heated towel rail, obscure glazed window to side.

Second Floor – Landing

Window to rear, door to;

Bedroom One

Velux window to front, window to rear, built in wardrobe and overstair storage, wall mounted electric heater, sliding door to;

En-suite shower

Fitted with a white suite comprising shower cubicle, low level WC, wash hand basin with cupboard under, extractor, strip light and shaver point, obscure glazed window to rear.

Outside

The rear garden has a patio area, a pond and flower borders with a greenhouse and block built storage building.

Services

Mains gas, water, electricity and drainage are connected to the property.

Outgoings

The Council Tax Band is ‘ C ’ and the payment for the year 2025/2026 payable to Wiltshire Council is £2350.54.

Directions

From our offices in Castle Street proceed along Scots Lane and continue over into Bedwin Street. Follow the road up the hill to the left into Estcourt Road. Take the first left into College Street and the property will be seen after a short distance on the right hand side.

WHAT3WORDS

What3Words reference is: ///ritual.third.boxing

EPC
EPC
Floor Plan
Floor Plan Floor Plan Floor Plan Floor Plan
Street View
Map

Thinking of selling?

Find out how much your home is worth with
our free valuation service

Book a Free Valuation

Use this calculator to help you work out
how much you borrow.

Mortgage Calculator

I’ve been immensely impressed by Whites Salisbury over the last several years. I only rent out one property but Carly and Diane have provided first rate support. They charge a fair amount for the management of the flat; they get in good value companies to undertake repairs and always keep me informed of any issues. Highly recommended.

Gary a.

Whites have been exceptional in my sale and purchase. From the valuation to viewing, I felt safe in Matthew’s hands. The team as a whole, in particular, Sally were welcoming and made the stressful procedure so much better. I would 100% recommend Whites, a small team with a big heart.

Caroline W.

Tony Williams was an important factor in making the house sale go through as smoothly as possible. He was there to offer advice and support and we are most grateful for his kind and professional service. Thank-you Tony and the White’s team for an awesome job!!

Kenneth K.

We were on the fence about moving when we approached several agents and Tony Williams of Whites’ gentle approach helped us to make the decision that was right for us. We sold during a tumultuous market and Tony did an excellent job of managing our expectations as well as our buyers.

 

Chris W.

We had a fantastic experience renting with Whites, and Carly, in particular, made the entire process seamless. She was not only friendly but also consistently available, addressing all our queries. Carly went the extra mile to accommodate our needs, giving us confidence about renting our new home. We highly appreciate her dedication and professionalism.

David L.