Shropshire Close, Salisbury

Detached family home, offered in excellent order, situated on a corner plot offering two parking spaces and extra garden, integral garage and three bedrooms.
£335,000
  • Key Features
  • Description
  • EPC
  • Floor Plan
  • Brochure
  • Street View
  • Map
Key Features
Rooms 3
Bathrooms 1
Living Rooms 1
Floor Area 958 sq ft

Freehold

  • Corner plot
  • Two parking spaces
  • Integral garage
  • Three bedrooms
  • Kitchen/dining room
  • Large sitting room
  • Gas central heating
  • Double glazed windows
Description

Description

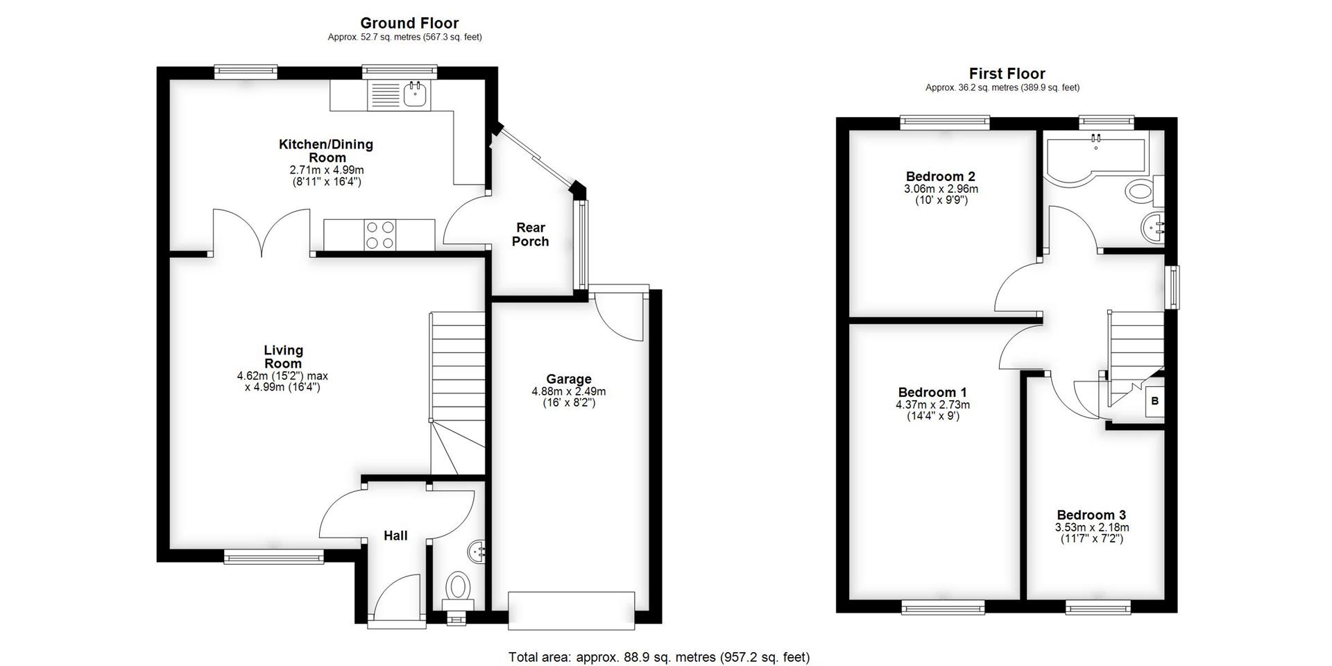
Detached family home, offered in excellent order, situated on a corner plot offering 2 parking spaces and extra garden. There is a garage with exceptionally high roof offering enormous storage or conversion potential, gas central heating by radiators, double glazed windows and an easy maintenance west facing garden. There is a downstairs cloakroom, large sitting room, kitchen/dining room with oak cabinets, useful rear porch, 2 double bedrooms, single bedroom and bathroom. It is situated in a very quiet location within this small cul-de-sac to the north of Salisbury and and about one and a half miles from Wilton.

Hall

Outside light, coats hanging space.

Cloakroom

Low level wc and hand basin with tiled splashback.

Sitting Room

Stairs to first floor with open space below, double doors to:

Kitchen/Dining Room

Part bamboo and part tiled flooring, range of work surfaces with inset single drainer stainless steel sink unit with mixer tap over, built in oven and 4 ring gas hob over, appliance space, good range of base and wall mounted cupboards and drawers.

Rear Porch

Sliding doors to garden, space and plumbing for washing machine and further appliance space.

Garage

Up and over door, pedestrian door to rear. Light and power, roof storage.

First floor Landing

Hatch to loft space.

Bedroom 1

Bedroom 2

Bedroom 3

Bathroom

Modern suite of white p-shaped bath with thermostatic rainfall and hand held shower over, wc, hand basin, heated towel rail.

Outside

To the front of the house are parking spaces for two vehicles. Wrought iron pedestrian gate leads to side garden with timber shed, greenhouse, apple tree and vegetable area. Paved pathway continues to the rear garden which is enclosed by timber fencing. Large paved patio with brick built barbeque area, low brick wall and archway to astroturf seating area and further vegetable garden, flower beds, ornamental pond, climbing roses and shrubs.

Services

Mains gas, water, electricity and drainage are connected to the property.

Outgoings

The Council Tax Band is ‘ D ’ and the payment for the year 2025/2026 payable to Wiltshire Council is £2644.36.

Directions

Proceed out of Salisbury on the A360 north. At the second mini roundabout turn left into Ramleaze Drive. At the T-junction turn left and take the first left into Shropshire Close.

WHAT3WORDS

What3Words reference is: ///punt.founding.pushover

EPC
EPC
Floor Plan
Floor Plan Floor Plan Floor Plan
Street View
Map

Thinking of selling?

Find out how much your home is worth with
our free valuation service

Book a Free Valuation

Use this calculator to help you work out
how much you borrow.

Mortgage Calculator

I’ve been immensely impressed by Whites Salisbury over the last several years. I only rent out one property but Carly and Diane have provided first rate support. They charge a fair amount for the management of the flat; they get in good value companies to undertake repairs and always keep me informed of any issues. Highly recommended.

Gary a.

Whites have been exceptional in my sale and purchase. From the valuation to viewing, I felt safe in Matthew’s hands. The team as a whole, in particular, Sally were welcoming and made the stressful procedure so much better. I would 100% recommend Whites, a small team with a big heart.

Caroline W.

Tony Williams was an important factor in making the house sale go through as smoothly as possible. He was there to offer advice and support and we are most grateful for his kind and professional service. Thank-you Tony and the White’s team for an awesome job!!

Kenneth K.

We were on the fence about moving when we approached several agents and Tony Williams of Whites’ gentle approach helped us to make the decision that was right for us. We sold during a tumultuous market and Tony did an excellent job of managing our expectations as well as our buyers.

 

Chris W.

We had a fantastic experience renting with Whites, and Carly, in particular, made the entire process seamless. She was not only friendly but also consistently available, addressing all our queries. Carly went the extra mile to accommodate our needs, giving us confidence about renting our new home. We highly appreciate her dedication and professionalism.

David L.